Стройка дома

Стройка дома от эскиза до новоселья

Мы спроектировали несколько нестандартных домов и они уже построены (фото и видообзоры есть на сайте)! Поэтому мы имеем право рассуждать о подходе к проектированию и стройке. В этой статье мы изложим оптимальную последовательность от первой мысли о стройке дома до новоселья. На примере нашего проекта дома у реки.

1) Сперва решите какой он, ваш дом мечты? На берегу реки с широким берегом или на краю лесного массива. Представьте образ… Хотите ли вы сидеть у камина зимой с чашкой какао, поглядывая на заснеженные сосны из панорамного окна? Или загородная жизнь для вас - это вечеринки с друзьями, игра в теннис и баня? Начать нужно именно с представления, как вы будете проводить время! Даже если хотите в доме “просто жить” нужно уделить время и сформулировать, какие параметры для жизни важны для вас. Возможность пробежек по утрам, прогулки с собакой, Это определит выбор участка! Нельзя просто выбрать “хороший коттеджный поселок”, купить там некий участок и потом придумывать, что именно там строить. Итак, вы представили ваш дом мечты, подобрали в интернете картинки, которые вам импонируют, и приобрели участок, на котором ваши мечты могут быть реализованы…

2) Далее необходимо сделать комплексный эскизный проект! Концепт - это самое сложное. Почему одни дома впечатляют своим видом, а другие кажутся колхозными самостроями, даже будучи отделанными дорогими материалами? Потому что без концепта можно и обойтись, для многих важно только чтобы крыша не протекала и спальня “была не менее 15кв.м.” Таких заказчиков не интересует эстетика сооружения, многим нужен даже не дом, а “стены-окна-крыша”. Беда еще в том, что некоторые архитекторы не возражают против такого подхода! Они профессионально начертят поэтажные планы, разрезы, фасады, пироги стен, все что положено в проекте АР, но архитектурной идеи в проект не вложат. Спроектируют “по ГОСТу” но без души и образа. Часто они сами себе не отдают в этом отчета…

Хороший концепт - это идея объемно-пространственной композиции дома, с учетом пожеланий заказчика и параметров участка. Когда концепт удачный, его эстетику сложно опротестовать. На любой вопрос, почему такая крыша, почему такой эркер, ответ будет в самой архитектуре, без лирики.

Покажу пример. Наш заказчик перечислил, что нужно 7 спален, гостиная, веранда, зал с бильярдом, баня и совмещенный гараж на 2 машины. По эстетике ему нравились проекты с криволинейными крышами.

Участок был куплен вот такой:

Управляющая дала топосъемку:

Если бы топосъемки не было, мы бы ее и сами сделали. Общая площадь участка 30 соток. И как видите, перепад высот от дороги до реки порядка 4м. Берег реки было разрешено облагородить и радоваться простору. Речка конечно не Волга, но для антуража и настроения замечательная!


Мы решили не бороться с рельефом, а наоборот включить его в замысел. Сильный перепад высот подтолкнул к идее вынести зал с бильярдом и баню в “подземный” корпус. Вот наш первый эскиз планировки:

При всем размахе проекта заказчики хотели сделать дом компактнее! И если бы мы в один пространственный объект “запихнули” все требуемые помещения - получилось бы громоздко. Поэтому мы предложили трехобъемную схему:


Это форэскиз, проект немного трансформировался к финалу. Но первичная идея осталась.


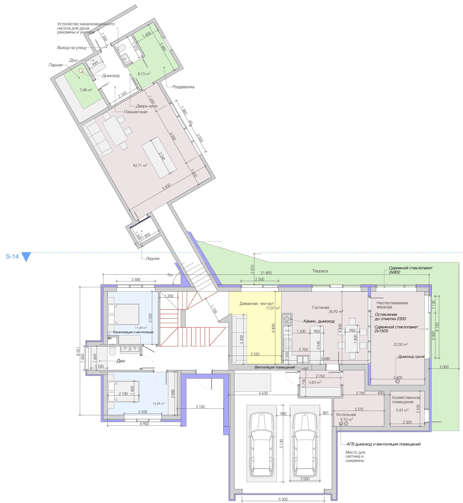
Мы шлифовали планировку, оптимизировали, уменьшали веранду, комнаты, искали баланс… В итоге получился такой совмещенный план:

Обратите внимание, что часть с залом и баней находится на 3+ метра ниже уровня первого этажа. Проще увидеть на 3д:

Вместе с архитектурным замыслом мы всегда прорабатываем базовые решения по интерьеру и ландшафту. Потому что экстерьер и интерьер - это взаимозависимые составляющие единого целого. Мы осуждаем подход “от фасада”, когда создается некий абстрактный проект дома, а потом заказчик в готовом доме сам решает, где он диван поставит, какой именно будет кухонный гарнитур. Все эти “мелочи” критически важны для самой архитектуры! Чтобы не получилось, что камин не помещается или про него забыли, или что для кухни мечты не хватает совсем немного! Преимущества дома перед квартирой как раз в том, что вы можете раздвинуть периметр, чтобы уместить все без компромиссов!


Итак проект готов, все ваши пожелания в нем отражены.


3) Дальше необходимо сделать инженерные и конструктивные расчеты. Провести гидрогеологические и прочие инженерные изыскания. Набор технических расчетов и изысканий в каждом случае разный, например в нашем проекте самый сложный элемент крыша - и мы произвели конструктивные расчеты стропильно-балочной системы.


Еще количество расчетов зависит от подрядчика Кто-то готов провести расчеты самостоятельно и строить по эскизам. А некоторые не готовы брать на себя нисколько дополнительной ответственности и требуют максимально полный пакет проектной документации. И вот начинается стройка. Покажем процесс в фотографиях:

Оболочка дома готова! Впереди самое сложное: отделка и ремонт внутри. На этой стадии строители должны быть особо пунктуальны и внимательны к соблюдению технологий! Например технология нанесения фасадной штукатурки имеет много нюансов. Если не соблюдать, то уже через год пойдут трещины, тогда как правильно нанесенная штукатурка продержится без проблем десятилетие! Чтобы дом выглядел красиво не только издали как силуэт, но и при ближайшем рассмотрении, чтобы сливы дождевиков и стыки между разными материалами были аккуратными, необходимо уметь управлять стройкой и подбирать исполнителей.

На момент написания статьи этот проект еще не закончен, поэтому предлагаем посмотреть фото нашего предыдущего дома, готового и внутри и снаружи.

Мы предлагаем бесплатную консультацию проекту и стройке дома. Сориентируем вас по всем вопросам, подскажем идеи.

Мы спроектировали несколько нестандартных домов и они уже построены (фото и видообзоры есть на сайте)! Поэтому мы имеем право рассуждать о подходе к проектированию и стройке. В этой статье мы изложим оптимальную последовательность от первой мысли о стройке дома до новоселья. На примере нашего проекта дома у реки.
Стройка дома от эскиза до новоселья
Вопрос-ответ
Часто задаваемые вопросы по дизайну и архитектуре. Если не найдете ответа, напишите нам, мы будем рады помочь!

1) Сперва решите какой он, ваш дом мечты? На берегу реки с широким берегом или на краю лесного массива. Представьте образ… Хотите ли вы сидеть у камина зимой с чашкой какао, поглядывая на заснеженные сосны из панорамного окна? Или загородная жизнь для вас - это вечеринки с друзьями, игра в теннис и баня? Начать нужно именно с представления, как вы будете проводить время! Даже если хотите в доме “просто жить” нужно уделить время и сформулировать, какие параметры для жизни важны для вас. Возможность пробежек по утрам, прогулки с собакой, Это определит выбор участка! Нельзя просто выбрать “хороший коттеджный поселок”, купить там некий участок и потом придумывать, что именно там строить. Итак, вы представили ваш дом мечты, подобрали в интернете картинки, которые вам импонируют, и приобрели участок, на котором ваши мечты могут быть реализованы…
Хороший концепт - это идея объемно-пространственной композиции дома, с учетом пожеланий заказчика и параметров участка. Когда концепт удачный, его эстетику сложно опротестовать. На любой вопрос, почему такая крыша, почему такой эркер, ответ будет в самой архитектуре, без лирики.

Покажу пример. Наш заказчик перечислил, что нужно 7 спален, гостиная, веранда, зал с бильярдом, баня и совмещенный гараж на 2 машины. По эстетике ему нравились проекты с криволинейными крышами.
Участок был куплен вот такой:
При всем размахе проекта заказчики хотели сделать дом компактнее! И если бы мы в один пространственный объект “запихнули” все требуемые помещения - получилось бы громоздко. Поэтому мы предложили трехобъемную схему:

Это форэскиз, проект немного трансформировался к финалу. Но первичная идея осталась.

Мы шлифовали планировку, оптимизировали, уменьшали веранду, комнаты, искали баланс… В итоге получился такой совмещенный план:
Фото
Фотографии наших строек, готовых объектов и иллюстрации к техническим разъяснениям.

Видео
Обзоры готовых объектов, процессы строек, советы и интервью с инженерами и мастерами.

Перепланировка. Тюнинг недвижимости
Исходная планировка квартиры, нуждается в доработке. Она не персонализирована и не продумана застройщиком. Но часто процесс приобретения недвижимости так изматывает, что люди смиряются и не ищут способов улучшить свою недвижимость.

Проект и стоительство дома
Последовательность создания дома, от первой идеи до новоселья. С чего начать, как получить красивый и функциональный результат?
Дизайн-проект интерьера
Описание нашего дизайн-проекта. Что вы получите, сотрудничая с нами. Если примера будет не достаточно, мы проведем персональную презентацию.

2) Далее необходимо сделать комплексный эскизный проект! Концепт - это самое сложное. Почему одни дома впечатляют своим видом, а другие кажутся колхозными самостроями, даже будучи отделанными дорогими материалами? Потому что без концепта можно и обойтись, для многих важно только чтобы крыша не протекала и спальня “была не менее 15кв.м.” Таких заказчиков не интересует эстетика сооружения, многим нужен даже не дом, а “стены-окна-крыша”. Беда еще в том, что некоторые архитекторы не возражают против такого подхода! Они профессионально начертят поэтажные планы, разрезы, фасады, пироги стен, все что положено в проекте АР, но архитектурной идеи в проект не вложат. Спроектируют “по ГОСТу” но без души и образа. Часто они сами себе не отдают в этом отчета…
Управляющая дала топосъемку:
Если бы топосъемки не было, мы бы ее и сами сделали. Общая площадь участка 30 соток. И как видите, перепад высот от дороги до реки порядка 4м. Берег реки было разрешено облагородить и радоваться простору. Речка конечно не Волга, но для антуража и настроения замечательная!

Мы решили не бороться с рельефом, а наоборот включить его в замысел. Сильный перепад высот подтолкнул к идее вынести зал с бильярдом и баню в “подземный” корпус. Вот наш первый эскиз планировки:
Обратите внимание, что часть с залом и баней находится на 3+ метра ниже уровня первого этажа. Проще увидеть на 3д:
Вместе с архитектурным замыслом мы всегда прорабатываем базовые решения по интерьеру и ландшафту. Потому что экстерьер и интерьер - это взаимозависимые составляющие единого целого. Мы осуждаем подход “от фасада”, когда создается некий абстрактный проект дома, а потом заказчик в готовом доме сам решает, где он диван поставит, какой именно будет кухонный гарнитур. Все эти “мелочи” критически важны для самой архитектуры! Чтобы не получилось, что камин не помещается или про него забыли, или что для кухни мечты не хватает совсем немного! Преимущества дома перед квартирой как раз в том, что вы можете раздвинуть периметр, чтобы уместить все без компромиссов!

Итак проект готов, все ваши пожелания в нем отражены.

3) Дальше необходимо сделать инженерные и конструктивные расчеты. Провести гидрогеологические и прочие инженерные изыскания. Набор технических расчетов и изысканий в каждом случае разный, например в нашем проекте самый сложный элемент крыша - и мы произвели конструктивные расчеты стропильно-балочной системы.

Еще количество расчетов зависит от подрядчика Кто-то готов провести расчеты самостоятельно и строить по эскизам. А некоторые не готовы брать на себя нисколько дополнительной ответственности и требуют максимально полный пакет проектной документации. И вот начинается стройка. Покажем процесс в фотографиях:
Оболочка дома готова! Впереди самое сложное: отделка и ремонт внутри. На этой стадии строители должны быть особо пунктуальны и внимательны к соблюдению технологий! Например технология нанесения фасадной штукатурки имеет много нюансов. Если не соблюдать, то уже через год пойдут трещины, тогда как правильно нанесенная штукатурка продержится без проблем десятилетие! Чтобы дом выглядел красиво не только издали как силуэт, но и при ближайшем рассмотрении, чтобы сливы дождевиков и стыки между разными материалами были аккуратными, необходимо уметь управлять стройкой и подбирать исполнителей.
На момент написания статьи этот проект еще не закончен, поэтому предлагаем посмотреть фото нашего предыдущего дома, готового и внутри и снаружи.
Мы предлагаем бесплатную консультацию проекту и стройке дома. Сориентируем вас по всем вопросам, подскажем идеи.